Если цена в объявлении изменится, мы сразу сообщим вам об этом на электронную почту.
Нажимая «Подписаться», вы соглашаетесь с правилами.
продам 1-к, Текстильщиков, 32 200 000 ₽
3 сен
Дата публикации объявления
Обн. 3 окт
Дата обновления объявления
42
Количество просмотров (+ просмотры за сегодня)
74 074 ₽/м²
Чистая продажа
Термин "Чистая продажа" означает, что в квартире никто не прописан или
есть куда выписаться и вывезти вещи. Это лучший вариант для покупателя.
Вероятность срыва сделки минимальна.
Код объекта: 1754246. Уникальное предложение в Ликино-Дулёво! Продаётся уютная однокомнатная квартира в кирпичном доме по адресу: улица Текстильщиков, 3.
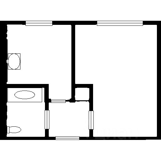
Квартира расположена на 4 этаже 5-этажного дома 1970 года постройки. Общая площадь — 29,7 кв. м, из которых 18 кв. м — жилая площадь, 6 кв. м — кухня. Высота потолков — 2,6 м. Балкон добавляет пространству функциональности и уюта. Совмещённый санузел обеспечит комфорт для жильцов.
Окна пластиковые, выходят на улицу, а благодаря расположению на среднем этаже квартира будет светлой и уютной. Квартира без отделки — идеальный вариант для тех, кто хочет сделать ремонт по своему вкусу.
Дом построен из кирпича с железобетонными перекрытиями, что гарантирует прочность и долговечность конструкции.
Код объекта: 1754246. Уникальное предложение в Ликино-Дулёво! Продаётся уютная однокомнатная квартира в кирпичном доме по адресу: улица Текстильщиков, 3.
Квартира расположена на 4 этаже 5-этажного дома 1970 года постройки. Общая площадь — 29,7 кв. м, из которых 18 кв. м — жилая площадь, 6 кв. м — кухня. Высота потолков — 2,6 м. Балкон добавляет пространству функциональности и уюта. Совмещённый санузел обеспечит комфорт для жильцов.
Окна пластиковые, выходят на улицу, а благодаря расположению на среднем этаже квартира будет светлой и уютной. Квартира без отделки — идеальный вариант для тех, кто хочет сделать ремонт по своему вкусу.
Дом построен из кирпича с железобетонными перекрытиями, что гарантирует прочность и долговечность конструкции. Центральное отопление обеспечивает комфортное проживание в холодное время года.
В шаговой доступности вся необходимая инфраструктура: автобусная остановка, гимназия и детский сад сбоку дома, магазины, ТЦ Дворец, детская и взрослая поликлиники, колледж, рынок, почта, Храм, стадион, МФЦ.
Не упустите шанс стать владельцем этой замечательной квартиры! Звоните нам прямо сейчас, чтобы узнать больше и записаться на просмотр.
Мы гарантируем безопасную сделку и юридическую поддержку нашим Клиентам. Поможем одобрить ипотеку с сниженной ставкой.